Основой любых опор освещения является металлопрокат. Он отвечает за формирование базовых элементов, их прочность, эстетику и долговечность.
Сегодня мы рассмотрим ключевые виды проката для производства опор, расскажем об особенностях его обработки и требованиях к качеству. Сведения помогут разобраться в ассортименте опор и упростят их подбор.
Используемые марки
Прокат для производства опор изготавливается из двух марок стали:
- Ст3пс5. Конструкционная углеродистая сталь обычного качества с 0,22% углерода, 0,04% серы и 0,05% фосфора. Материал производится по ГОСТ 380-2005, подходит изделиям, эксплуатируемым в диапазоне от -40 до +425°С.
- 09Г2С. Низколегированная углеродистая сталь с 0,9% углерода и 1,3 – 2% марганца. Содержание серы и фосфора – 0,035 и 0,03% соответственно. Сплав выпускается по ГОСТ 19281, подходит для температур от -70 до +425°С.
Количество серы и фосфора важно для любой стали. Это вредные элементы, попадающие в сплав из-за особенностей производства. Их обилие увеличивает хрупкость, снижает пластичность и ударную вязкость.
Опоры из Ст3пс5 эксплуатируются в умеренном климате, из 09Г2С – в северном. Изделия первого типа нельзя использовать при сильном морозе, иначе они быстро выйдут из строя.
Важным преимуществом перечисленных материалов является хорошая свариваемость. Получаемые швы устойчивы к большинству воздействий, способствуют долгой и эффективной эксплуатации конструкции. Как правило, сварка выполняется полуавтоматом, проволокой СВ-08Г2С, реже используют электроды.
Листовой прокат
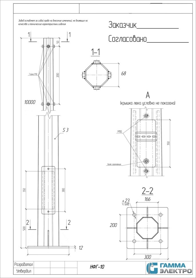
Многие элементы опор изготавливают из металлических листов. Так, стойка НФГ-10 выполнена из проката толщиной 3 мм, прошедшего гибку на тандемном прессе с ЧПУ. Деталь обладает формой шестигранной пирамиды и крайне высокой жесткостью.

Конструкция опоры НФГ-10
Фланцы конструкции также выполнены из листа. Их толщина зависит от высоты опоры, варьируется от 10 до 20 мм. Изделия производят с использованием газовой, лазерной и плазменной резки на станках с ЧПУ, что обеспечивает полную повторяемость операций и низкий процент брака.
Малые и средние производители заказывают готовые фланцы, крупные – изготавливают свои. Собственный выпуск элементов позволяет вносить изменения в серийное производство и экономить в долгосрочной перспективе.

Кроме того, из листового металла изготавливают ребра жесткости. Они соединяют фланец с вертикальной частью опоры или закладной. Обычно элементы имеют треугольную форму, без выступающих острых углов.
Трубный прокат
Стойки и кронштейны опор могут состоять из труб, как в случае с ОКК-5. Такое решение исключает гибку листа, позволяет использовать прокат сразу после заготовительных операций.
Диаметр стойки определяется размером опоры. С ростом высоты увеличивается и диаметр.

Конструкция опоры ОКК-5.
Некоторые модели могут содержать кронштейны из труб, полученные посредством дорновой гибки. Операция включает:
- заполнение внутреннего проема трубы песком или иным наполнителем;
- изгибание заготовки на станке с приложением требуемых усилий;
- опорожнение трубы.
В результате кронштейн приобретает заданную форму без трещин, замятий и разрывов поверхности.
Профильный прокат
При производстве декоративных опор освещения востребован профильный прокат. Он представлен прямоугольными и квадратными трубами, позволяет получить конструкцию с выраженными, строгими формами.
Обычно заготовки не подвергаются изгибанию. Из них формируются отдельные элементы изделий, соединяемые сваркой. Детали фиксируются под разными углами, создавая уникальные композиции.
Хорошим примером декоративной опоры из профильного проката является «Тверь 150» TV150 50/1. Она имеет ровную квадратную стойку с прямоугольным кронштейном для светодиодов. Монтаж осуществляется через круглый фланец, прикрытый декоративной накладкой.

Защита от коррозии
Опоры из любого проката подвергаются цинкованию. Операция проводится методом погружения, обеспечивает полное заполнение полостей и надежную защиту металла от окисления.
Некоторые производители используют цинкосодержащие грунты, что нарушает технологию и приводит к преждевременному износу конструкций. От покупки таких изделий лучше отказаться.
Правила приемки проката
Приемка проката – регламентированная процедура, проводимая сотрудниками предприятия. Она организуется по ГОСТ 7566-2018, включает следующие этапы:
- Проверка документации. Специалисты изучают сопроводительные бумаги, сверяют марку стали, размеры, вес и прочие параметры. Они должны соответствовать заявке организации, данным в накладных и на бирке проката.
- Визуальный контроль. Продукцию осматривают на предмет дефектов. Это могут быть замятия, трещины, заусенцы, деформированные концы и т.д. Если недочеты не влияют на эстетические и эксплуатационные качества товара, ими пренебрегают. Например, пятна краски не являются поводом для возврата.
- Измерительные процедуры. Прокат измеряют поверенным инструментом. Процедура выявляет искривления и отклонения в размерах. Если они превышают пороговые значения, материал не принимают в производство. Например, допустимые отклонения для труб диаметром до 152 мм составляют 10% для толщины стенки и 0,4 мм для габаритного размера.
- Оценка сохранности. Сплавы Ст3пс5 и 09Г2С не относятся к коррозионностойким. При нарушении условий хранения на них появляется ржавчина, препятствующая работе с прокатом. В случае поверхностного поражения небольших зон дефект считается допустимым. Если коррозия проникла вглубь металла и истончила его, партия отбраковывается.
Опционально проводится проверка упаковки. Но если прокат находится в удовлетворительном состоянии, отсутствие тары не критично.

По завершении процедуры составляется акт, подтверждающий надлежащее качество продукции либо ее дефекты.
Как получить надежные и долговечные опоры
Чтобы приобрести качественные опоры освещения, отвечающие требованиям нормативов, обращайтесь к проверенному поставщику. Такой подход позволит:
- Получить изделия, выполненные из марочного проката, принятого по отраслевым нормам.
- Гарантировать соответствие размеров и свойств продукции требованиям конструкторской документации.
- Исключить сложности при доставке, хранении и монтаже.
- Снизить риск коррозии конструкций и расходы на уход за ними.
Ознакомиться с актуальными вариациями опор и заказать оптимальные решения для объекта поможет каталог ООО «Гамма-Электро».

