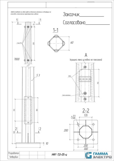
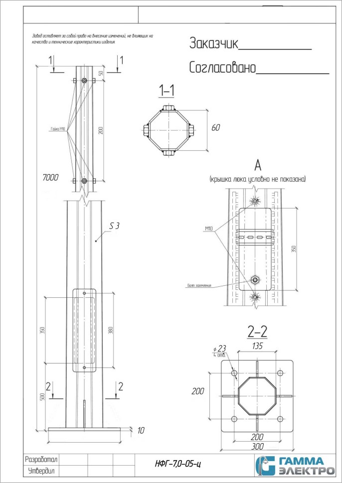
Опора НФГ-7,0-05-ц
- Обзор
Данный тип опор предназначен для использования в составе осветительных конструкций на любых объектах. На опоры монтируются кронштейны для установки светильников. Подвод электропитания подземный. Крепление фланцем к закладной детали ж/б фундамента. Обработка металла методом горячего цинкования обеспечивает прекрасную стойкость агрессивным воздействиям окружающей среды и значительно продлевает срок службы изделий.
НЕ ПРИМЕНЯЮТСЯ В КАЧЕСТВЕ СИЛОВЫХ МЕТАЛЛОКОНСТРУКЦИЙ!
В г. Тосно Ленинградской области осуществлена комплексная поставка опор НФГ-7 с кронштейнами, закладными деталями и молниеотводом.
- Характеристики
Производитель Гамма-Электро Высота опоры (м) 7 Способ установки Фланцевая Закладная для опор Закладная ФМ-133-1,5 Назначение опоры Несиловая Форма ствола Граненая Тип установки кронштейна (Ф) Фланец Вид покрытия (Ц) Горячее цинкование Резьба М24



