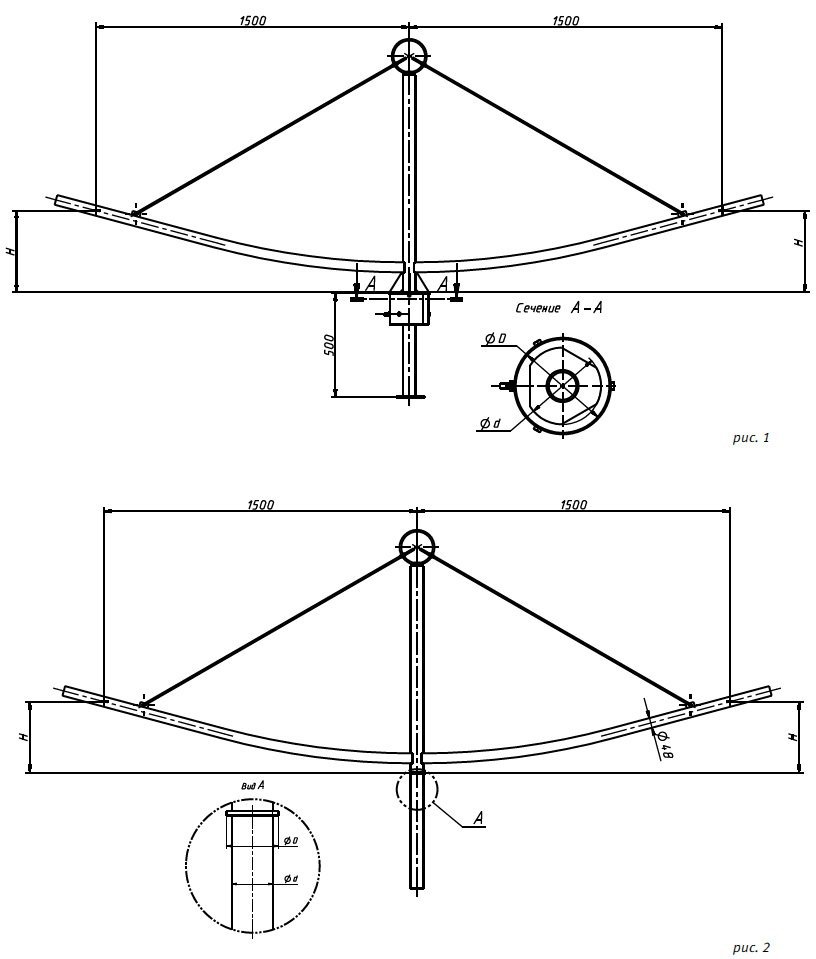
Кронштейн ТАНС.42.031.000 (4.К2-0,8-1,5-/180-О4-ц)
- Обзор

- Характеристики
Производитель Opora Engineering Серия кронштейна Ладья (серия 4) Вылет кронштейна 1.5 Высота кронштейна 0.8 Кол-во посадочных мест под ОП 2 Тип установки кронштейна (О) Обечайка Тип крепежа светильника (К) Консольный Вид покрытия (Ц) Горячее цинкование

