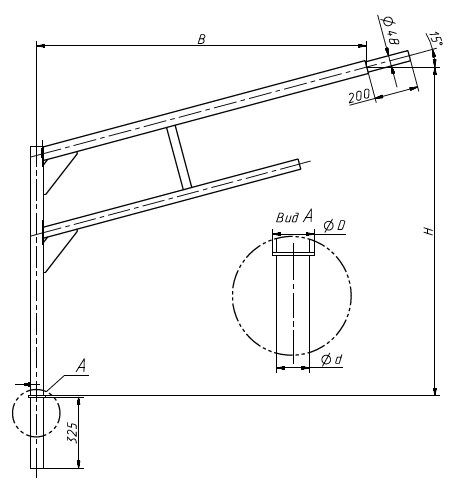
Кронштейн ТАНС.41.470.000 (2.К2-1,0-1,5-Ф3-ц)
- Обзор

- Характеристики
Производитель Opora Engineering Серия кронштейна Вектор (серия 2) Вылет кронштейна 1.5 Высота кронштейна 1.0 Кол-во посадочных мест под ОП 2 Тип установки кронштейна (Ф) Фланец Тип крепежа светильника (К) Консольный Вид покрытия (Ц) Горячее цинкование

