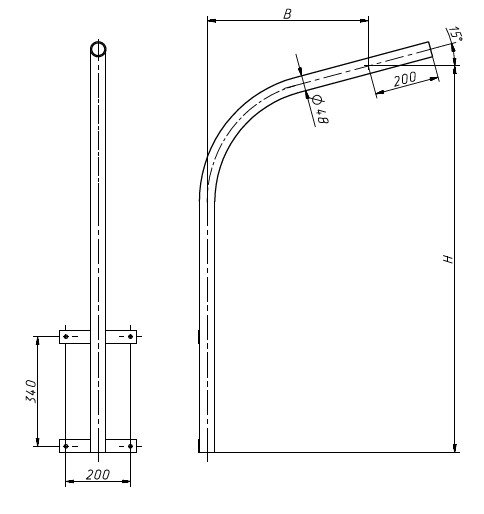
Кронштейн ТАНС.41.251.000 (1.К1-1,2-0,5-Н3-ц)
- Обзор

- Характеристики
Производитель Opora Engineering Серия кронштейна Стандарт (серия 1) Вылет кронштейна 0.5 Высота кронштейна 1.2 Кол-во посадочных мест под ОП 1 Тип установки кронштейна (Н) Настенный Тип крепежа светильника (К) Консольный Вид покрытия (Ц) Горячее цинкование

