Опора ОГК-5,0
- Обзор
Данный тип опор предназначен для использования в составе осветительных конструкций на любых объектах. На опоры монтируются кронштейны для установки светильников. Подвод электропитания подземный. Крепление фланцем к закладной детали ж/б фундамента. Обработка металла методом горячего цинкования обеспечивает прекрасную стойкость агрессивным воздействиям окружающей среды и значительно продлевает срок службы изделий.
НЕ ПРИМЕНЯЮТСЯ В КАЧЕСТВЕ СИЛОВЫХ МЕТАЛЛОКОНСТРУКЦИЙ!
Крупная прямая поставка опор ОГК-5 недавно была осуществлена в Самару. Теперь на берегу Волги будет уютный освещенный парк для отдыха горожан.
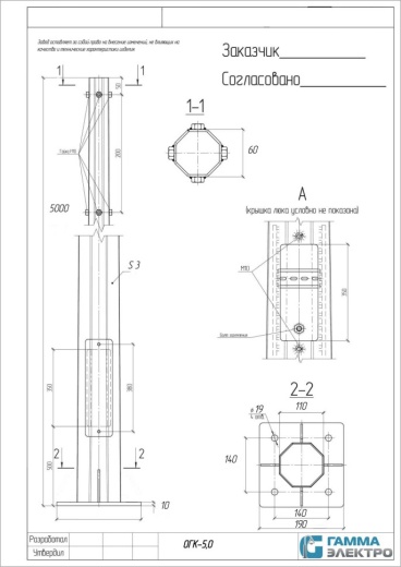
- Характеристики
Производитель Гамма-Электро Высота опоры (м) 5 Установочное место кронштейна Ф2, Ф3 Высота закладной детали, мм 1 250,0 Закладная Закладная ФМ-108-1,5, Закладная ФМ-108-1,2 Диаметр в нижней части опоры, мм 110,0 Диаметр в верхней части опоры, мм 60,0 Резьба крепежа М16, М20 Размер фланца, мм 190,0 Межосевой размер крепежа фланца, мм 140,0 Количество отверстий фланца 4 Способ установки Фланцевая Закладная для опор Закладная ФМ-108-1,5, Закладная ФМ-108-1,2 Назначение опоры Несиловая Форма ствола Граненая Тип установки кронштейна (Ф) Фланец Вид покрытия (Ц) Горячее цинкование Резьба М16, М20



